世田谷区等々力七丁目 築浅一戸建て 東京都世田谷区等々力7丁目|14,980万円の中古一戸建て|センチュリー21スミカ・クリエイト

NEW

世田谷区等々力七丁目 築浅一戸建て

お気に入り
販売価格 14,980万円 ローンシミュレーション
所在地 東京都世田谷区等々力7丁目
交通
東急大井町線 「尾山台駅」 徒歩14分
東急大井町線 「等々力駅」 徒歩17分
東急東横線 「自由が丘駅」 徒歩20分/バス6分 等々力七丁目 停歩5分
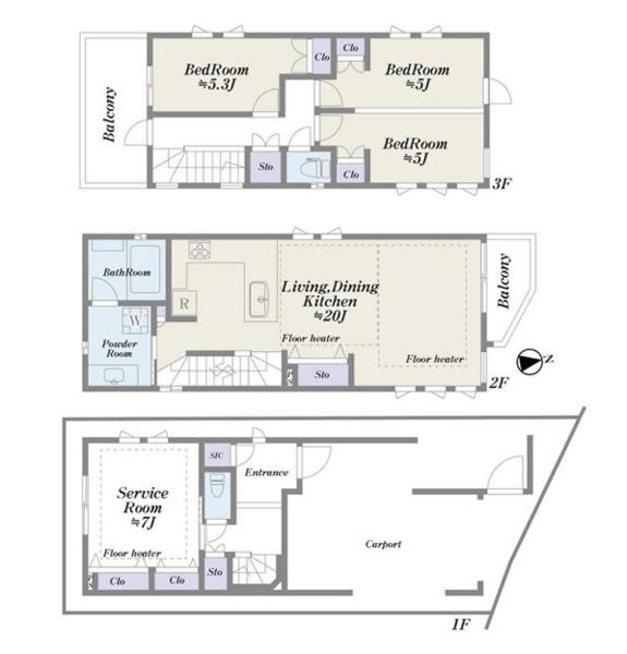
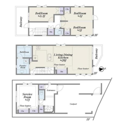
土地面積 70.1m² (21.2坪) 建物面積 106.31m2 間取り 3SLDK (-) 築年月 2023年9月築

2023年9月築、野村不動産旧分譲・イトーピアホーム施工、床暖房3面・食洗機など設備充実、南北二面バルコニー付き

設備・特徴

  • フローリング
  • 床暖房
  • システムキッチン
  • 浴室乾燥機
  • ガスコンロ
  • コンロ三口
  • バルコニー
  • 本下水
  • 都市ガス
  • 新着物件

物件概要

物件種別 中古一戸建て
物件名 世田谷区等々力七丁目 築浅一戸建て
価格 14,980万円 ローンシミュレーション
所在地 東京都世田谷区等々力7丁目
交通 東急大井町線 尾山台駅 徒歩14分
東急大井町線 等々力駅 徒歩17分
東急東横線 自由が丘駅 徒歩20分/バス6分 等々力七丁目 停歩5分
土地面積 70.1m² (21.2坪)
建物面積 106.31m2
間取り 3SLDK
築年月 2023年9月築
採光面 - 構造/階数 木造/地上3階建
建ぺい率 60(%) 容積率 150(%)
駐車場 現況/引渡し 居住中/相談
土地権利 所有権 私道負担面積 -

接道状況 接道: 北 公道 道路幅: 8m 用途地域
第一種低層住居専用地域
セットバック - 法令上の制限 高度地区;準防火地域
地目 宅地 地勢
建築確認番号 都市計画 市街化区域
備考 -
※各種情報と差異がある場合は現況優先となります。

備考情報

引渡し 相談 取引態様 仲介
情報更新日 2026年04月15日 次回更新日 2026年04月29日
物件番号 RHS-043101-17170
※各種情報と差異がある場合は現況優先となります。

学区情報

小学校区 世田谷区立等々力小学校
(東京都世田谷区)
東京都世田谷区立等々力小学校学区の他の物件を見る
中学校区 東深沢中学校
(東京都世田谷区)
東京都世田谷区立東深沢中学校学区の他の物件を見る
※物件情報の学区情報について
当サイト物件情報に記載されております通学区域(学区)情報は、国土数値情報ダウンロードサービスが提供する小学校区データ【2023年度】及び中学校区データ【2023年度】を元に加工したものですので、記載情報が現在の学区域と異なる場合がございます。
国土数値情報ダウンロードサービスのWEBサイト上で記述通り、データは必ずしも正確とは言えません。また、通学区域(学区)は毎年見直しの対象となりますので、そちらを踏まえ学区情報は参考としてご活用下さい。

ローンシミュレーション

物件価格 万円
借入金利
ボーナス払い 返済期間 自己資金 直接入力する 万円

毎月のご返済額

ボーナス(×年2回)

※返済金額はあくまでも目安です。

条件の近い物件

お問い合わせ

  1. 1
    内容入力
  2. 2
    内容確認
  3. 3
    完了
お問合せ内容必須
【備考欄】
詳細な見学ご希望時間、ご質問、ご希望条件などがございましたらお聞かせ下さい。
(2000文字以内)
お名前必須
メールアドレス必須
※ご記入いただいたメールアドレス宛てに、お問合せ内容の確認メールをお送りいたします。
※Yahoo!メールなどのフリーメールをご利用の場合、迷惑メールフォルダに入る場合があります。
 迷惑メールのフォルダ・設定等をご確認下さい。
電話番号必須
※ご入力いただいたお客さまの個人情報は、「個人情報の取扱いについて」に基づき適正に取り扱います。必ずお読みになり、同意の上お問い合わせください。

センチュリー21スミカ・クリエイトへ電話をかける

0120-21-9621

※「ホームページを見た」
お伝え下さい。
【物件番号:RHS-043101-17170】

お気軽にお問い合わせください