アーバンドック パークシティ豊洲 タワーB 東京都江東区豊洲2丁目 5-2|16,980万円の中古マンション|センチュリー21スミカ・クリエイト

TOPページ
物件検索
中古マンション
江東区
東京メトロ有楽町線
アーバンドック パークシティ豊洲 タワーB
NEW

アーバンドック パークシティ豊洲 タワーB

お気に入り
販売価格 16,980万円 ローンシミュレーション
所在地 東京都江東区豊洲2丁目 5-2
交通
東京メトロ有楽町線 「豊洲駅」 徒歩6分
新交通ゆりかもめ 「豊洲駅」 徒歩9分
都営大江戸線 「月島駅」 徒歩18分
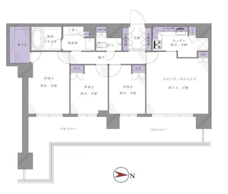
専有面積 81.15m2 間取り 3LDK (-) 築年月 2007年11月築

-

設備・特徴

  • フローリング
  • 床暖房
  • システムキッチン
  • 追い焚き
  • 浴室乾燥機
  • コンロ三口
  • バルコニー
  • エレベーター
  • ペット可
  • 新着物件

物件概要

物件種別 中古マンション
マンション名 アーバンドック パークシティ豊洲 タワーB
価格 16,980万円 ローンシミュレーション
所在地 東京都江東区豊洲2丁目 5-2
交通 東京メトロ有楽町線 豊洲駅 徒歩6分
新交通ゆりかもめ 豊洲駅 徒歩9分
都営大江戸線 月島駅 徒歩18分
間取り 3LDK
専有面積 81.15m2
築年月 2007年11月築
所在階/階数 11階/地上32階 地下1階建
管理費等 24,990円
修繕積立金 16,230円
その他費用
バルコニー面積 27.22m² ルーフバルコニー面積
採光面 現況 居住中
総戸数 420戸 構造 RC造
テラス面積 - 専用庭面積 -
駐車場 空無 駐輪場 -
駐車場 備考 駐輪場 備考
建物権利 - 土地権利 所有権
管理態様 管理形態:日勤
管理会社:三井不動産レジデンシャルサービス(株)
用途地域
-
-
-
備考 -
※各種情報と差異がある場合は現況優先となります。

備考情報

引渡し 相談 取引態様 仲介
情報更新日 2026年04月26日 次回更新日 2026年05月10日
物件番号 RHS-043101-17206
※各種情報と差異がある場合は現況優先となります。

学区情報

小学校区
()
中学校区
()
※物件情報の学区情報について
当サイト物件情報に記載されております通学区域(学区)情報は、国土数値情報ダウンロードサービスが提供する小学校区データ【2023年度】及び中学校区データ【2023年度】を元に加工したものですので、記載情報が現在の学区域と異なる場合がございます。
国土数値情報ダウンロードサービスのWEBサイト上で記述通り、データは必ずしも正確とは言えません。また、通学区域(学区)は毎年見直しの対象となりますので、そちらを踏まえ学区情報は参考としてご活用下さい。

ローンシミュレーション

物件価格 万円
借入金利
ボーナス払い 返済期間 自己資金 直接入力する 万円

毎月のご返済額

ボーナス(×年2回)

※返済金額はあくまでも目安です。

条件の近い物件

お問い合わせ

  1. 1
    内容入力
  2. 2
    内容確認
  3. 3
    完了
お問合せ内容必須
【備考欄】
詳細な見学ご希望時間、ご質問、ご希望条件などがございましたらお聞かせ下さい。
(2000文字以内)
お名前必須
メールアドレス必須
※ご記入いただいたメールアドレス宛てに、お問合せ内容の確認メールをお送りいたします。
※Yahoo!メールなどのフリーメールをご利用の場合、迷惑メールフォルダに入る場合があります。
 迷惑メールのフォルダ・設定等をご確認下さい。
電話番号必須
※ご入力いただいたお客さまの個人情報は、「個人情報の取扱いについて」に基づき適正に取り扱います。必ずお読みになり、同意の上お問い合わせください。

センチュリー21スミカ・クリエイトへ電話をかける

0120-21-9621

※「ホームページを見た」
お伝え下さい。
【物件番号:RHS-043101-17206】

お気軽にお問い合わせください