専有面積200平米超バブル期竣工高級分譲マンション、最上階ワンフロア三面採光角部屋
グランフォルム大田中央

グランフォルム大田中央

大田区中央5丁目20-1
中古マンション 22,800万円
  • 4LDK
  • 専有:211.43m²
都営浅草線 『西馬込』駅  徒歩15分
東急池上線 『池上』駅  徒歩24分
JR京浜東北線 『大森』駅  徒歩29分
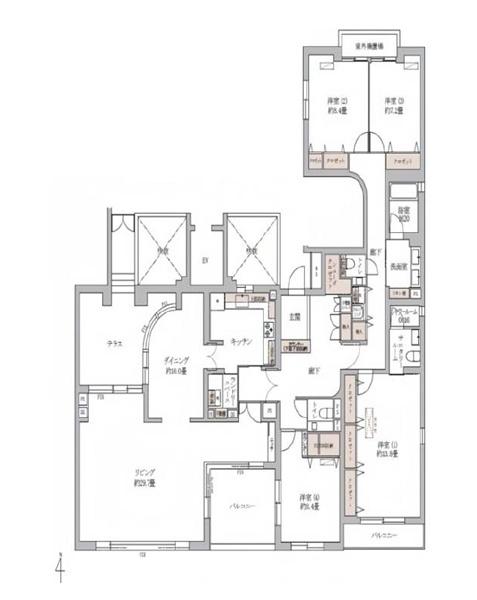
グランフォルム大田中央 間取図

物件概要

物件ID
167901
物件名
グランフォルム大田中央
所在地
大田区中央5丁目20-1 google map
交通
都営浅草線 西馬込駅 徒歩15分
東急池上線 池上駅 徒歩24分
JR京浜東北線 大森駅 徒歩29分
権利
所有権
専有面積
211.43m² / 壁芯
間取り
4LDK
建物構造 / 階層
RC(鉄筋コンクリート造) 地上6階
所在階
6階
管理費
192,210円
管理形態
全部委託 / 日勤
完成
1988年03月
棟総戸数
16戸
駐車場
空無
引渡し
相談
現況
居住中
取引態様
備考
修繕積立金:管理費に含む

最終更新日:2025/11/25 取引条件有効期限:2025/12/09

販売図面

池上本門寺東側の蓬莱坂沿い高台、浅草線の西馬込駅最寄り、池上線の池上駅や京浜東北線の大森駅利用可能も利便性は低評価です。
そもそもがそういう一般感覚で語れない価格帯、大田区中央住所でこの価格帯、さらには概要記載の共益費がかかります。
一方で最上階ワンフロア専有面積211.43平米、南×東×北の三面採光、テラス+バルコニー面のリビングダイニングは40帖弱の広さ、陽当たりは言うまでもなく、眺望は圧巻の一言です。
敷地使い、建物構えや共用部、室内含め全体的にバブル期竣工を物語る豪華さのリクルートコスモス旧分譲マンションです。

評価チャート

※本ページのチャート数値は、すべて担当者の主観によるものであり、また状況が不明確な場合は平均値の『3』を表示しておりますので、ご了承ください。

学区情報

入新井第四小学校
大森第三中学校

設備

エレベーター オートロック 宅配ボックス


シューズインクローゼット バルコニー バルコニー有 角部屋 2沿線以上利用可 フローリング システムキッチン コンロ口数 三口

この物件へのお問い合わせ

  • お問い合わせの物件
    中古マンション / 大田区中央5丁目 / 22,800万円
    都営浅草線 『西馬込』駅 徒歩15分
  • お問い合わせ内容
  • ご質問の内容や、ご希望のご連絡方法・ご見学/ご来訪日時・ご人数、などをお知らせください。
  • お名前
    姓   名 
  • フリガナ
    姓   名 
  • メールアドレス
  • お電話番号
  • ご住所


【個人情報の取り扱いについて】
下記記載の『個人情報の取扱いについて』の内容をご確認頂いた後、同意された方のみ下記『同意する』にチェックして次へお進み下さい。

※個人情報の提供は必須ではありません。ただしご提供頂けなかった場合、また必須項目にご入力頂けない場合には、お問い合わせ、ご相談に対応できないことをご了承下さい。
このフォームの送信は、SSLを使用して暗号化され、保護された通信で送られます。SSL/TLSとは?

プライバシーマーク付与認定の取得について

プライバシーマーク認証取得 株式会社スミカ ・クリエイトは、平成18年5月25日付で一般財団法人日本情報処理開発協会(JIPDEC)より不動産取引業として『プライバシーマーク』付与の認定を受けました。

プライバシーマークとは日本産業規格JISQ15001「個人情報保護マネジメントシステムの要求事項」に適合し、個人情報について適切な保護の為の体制を整備している事業者に付与されるマークのことです。

当社では企業としてお客様と社会にも安心な取引やサービスを提供する為に、平成17年4月1日の個人情報保護法の施行や昨今の情報化社会における個人情報の保護の重要性に対応すべく、企業の社会的責任として個人情報保護に対する取り組みを実施しております。

今後も当社の個人情報保護方針のもと、お客様をはじめとする個人情報について適正な取扱いと保護・管理に努めてまいります。

個人情報の取扱いについて

1.個人情報の利用目的
当社は、お預かりした個人情報を以下の利用目的の達成に必要な範囲で利用いたします。
  1. 会員登録フォーム
    1. 会員登録管理のため
    2. 会員への各種サービス提供のため
  2. お問い合わせ
    1. お問い合わせ対応のため
  3. 物件お問い合わせ
    1. お問い合わせ対応のため
  4. 売却査定予約
    1. 売却査定予約管理のため
    2. 売却査定予約サービス提供のため
2.個人情報の第三者提供
  1. ご登録いただきました個人情報は情報共有及び前項2.“会員登録/物件お問合せ”のA及びBの目的のためセンチュリー21ジャパン本部(株式会社センチュリー21ジャパン)に提供します。提供方法は専用の登録フォームから提供いたします。この場合、個人情報の管理責任はセンチュリー21ジャパン本部の責任において個人情報の管理を実施します。なお、センチュリー21ジャパン本部とは守秘義務契約を締結しております。
  2. その他、ご本人の同意がある場合又は法令に基づく場合を除き致しません。
3.個人情報の委託
上記、1.個人情報の利用目的の範囲内において、個人情報の取り扱いの全部又は一部を委託することがあります。その場合は、当社の個人情報保護規程に従い適切な委託先の監督を実施します。
4.保有個人データの開示等の請求に関する手続き
当社が保有するご本人の個人情報について開示等(利用目的の通知、開示、内容の訂正、追加又は削除、利用の停止、消去及び第三者への提供の停止、第三者提供の記録の開示)の請求に応じます。開示等へのご請求につきましては、下記の「個人情報相談窓口」まで、ご連絡ください。「個人情報に関する回答書」(以下、回答書という)を送付します。回答書の内容をご確認頂き項目に従って記入しご返送下さい。ご請求の際には、ご本人又は代理人を証明する書類等のご提示を求めることがあります。開示等のご請求に対しては、当社から電話、又は、書面等で回答させて頂きます。
なお、開示等に関する費用の徴収は致しません。

開示等の請求の際に、ご請求された方がご本人または代理人であることを確認するための下記の書類をご提出して頂く場合があります。
  1. 開示等をご請求される方がご本人の場合、次のいずれか1点の添付をお願いいたします。
    • 運転免許証、旅券、個人番号カード(氏名と写真の表示がある面のみ)などの写し
    • 国家資格証、健康保険証、年金手帳、住民票(3ヶ月以内、個人番号の記載がないもの)の写し
    • 外国人の方は在留証明書の写し
  2. 開示等をご請求される方が代理人様の場合
    • 上記書類のいずれか1点とご本人による委任状
      (ご本人による捺印と当該印鑑の印鑑登録証明書をご提出ください。代理人様が親権者などの法定代理人の場合は、ご本人との関係がわかるものご提出ください。
      又、弁護士などの有資格者の場合はその職業名と登録番号を記載ください。)
5.開示等をしない場合の取扱い
次に定める場合は、開示等の対応を致しかねますので、予めご了承願います。開示等をしないことを決定した場合は、その旨理由を付して通知申し上げます。
  • ご本人の確認ができない場合
  • 代理人によるご依頼に際して、代理権が確認できない場合
  • 所定の依頼書類に不備があった場合
  • ご依頼のあった情報項目が、当社保有個人データに該当しない場合
  • 本人または第三者の生命、身体、財産その他の権利利益を害するおそれがある場合
  • 当社の業務の適正な実施に著しい支障を及ぼすおそれがある場合
  • 他の法令に違反することとなる場合
6.安全管理措置
  1. 基本方針の策定
    • 個人情報保護方針の策定
    • 関係法令・ガイドライン等の遵守
    • 相談窓口の公開
  2. 個人データの取扱いに係る規律の整備
    • 個人情報保護マネジメントマニュアルを策定し、従業者に周知しています
  3. 組織的安全管理措置
    • 代表者の下に個人情報保護管理者を設置し、個人情報保護監査責任者や教育責任者などを設置の上、個人情報の安全管理対策を実施しています
  4. 人的安全管理措置
    • 個人データの取扱いに関する留意事項について、従業者に定期的に研修を実施しています
  5. 物理的安全管理措置
    • 事務所の出入り口はセキュリティ対策を施したドアを設置し、施錠しています
    • 事務所内にある書庫は、施錠して管理しています
  6. 技術的安全管理措置
    • セキュリティ対策が施されたサーバーを利用しています
    • 機器及びファイル等にはID・パスワードを使用し、アクセス制限しています
    • SSL等による安全性の確保・クロスサイトスクリプティング対策などを行っています
  7. 外的環境の把握
    • 国内事業者を利用し、個人情報は外国へは提供していません。
7.個人情報を提供されることの任意性
個人情報のご提供は、任意判断となりますが、ご提供いただけない場合又は情報の記載ミスや入力等に誤りがありますと、お客様へのサービスが一部または全部をご提供できない場合があります。
8.本人が容易に認識できない方法による個人情報の取得
当ウェブサイトでは、利用状況を把握するためにCookieを利用しています。Cookieを利用する目的は、利用者が当ウェブサイトを閲覧した状況を分析するためのものです。個人情報の取得はございません。また、Cookie情報を第三者に提供することもございません。
9.個人情報保護管理者
不動産仲介事業部 部長 連絡先は下記の個人情報相談窓口となります。
10.個人情報に関する相談窓口
個人情報の取扱いに関するご意見又は苦情、ご要望につきましては、以下の個人情報相談窓口まで、ご連絡ください。
個人情報相談窓口:
 株式会社スミカ・クリエイト 管理部
 〒153-0051
 東京都目黒区上目黒1丁目26番9号
 中目黒オークラビル
TEL: 03-5720-1285(平日10:00~18:00)
FAX: 03-5720-1287
mail : info@c21-smica.com

【認定個人情報保護団体の名称および苦情の解決の申し出先】
当社は、下記の認定個人情報保護団体の対象事業者です。
当社の個人情報の取扱いに関する苦情の解決の申出先は以下のとおりです。

一般財団法人 日本情報経済社会推進協会 認定個人情報保護団体事務局
住所:
 〒106-0032
 東京都港区六本木一丁目9番9号
 六本木ファーストビル内
電話番号: 03-5860-7565
フリーダイアル: 0120-700-779 (平日9:30~12:00、13:00~16:30)

<注意>
*当社の商品・サービスに関する問合せ先ではございません
*当社の商品・サービスに関する問合せは03-5720-1285になります

制定日 平成17年4月1日
最終改定日 令和6年2月14日
株式会社スミカ・クリエイト
東京都目黒区上目黒1丁目26番9号
中目黒オークラビル
代表取締役 味戸 吉春